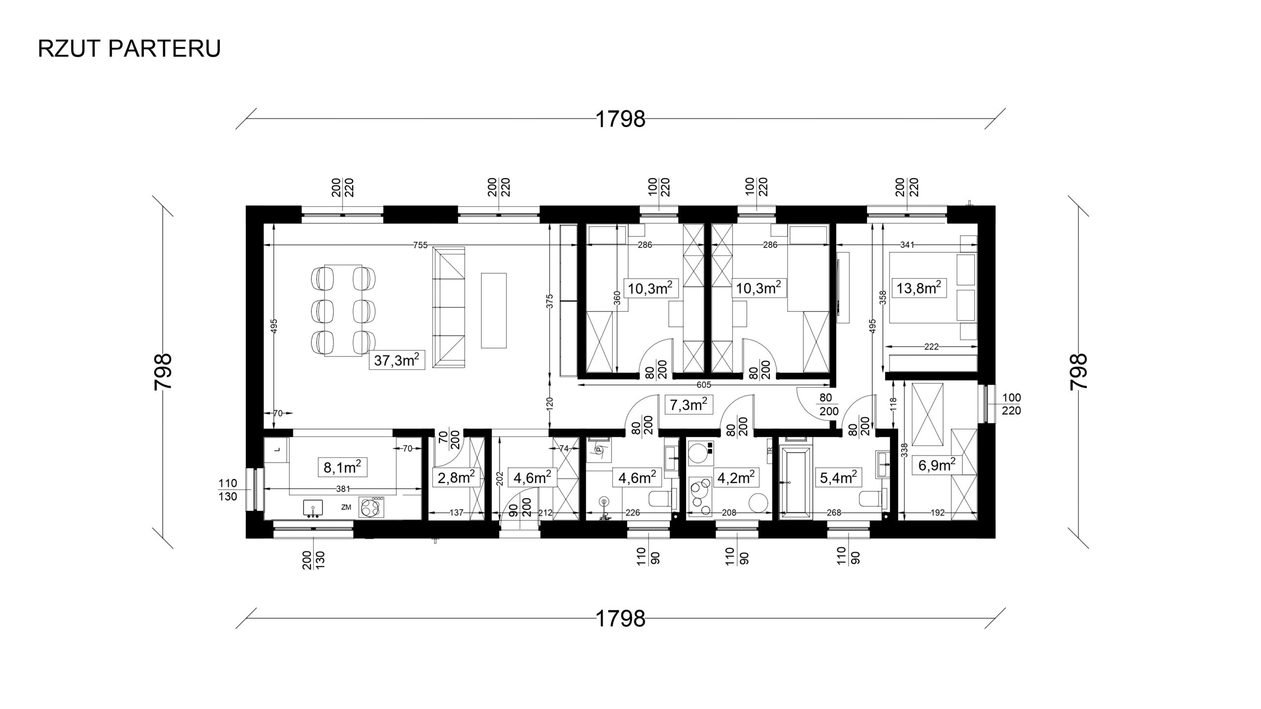
Dom parterowy Carina skradnie serca wszystkich miłośników projektów w stylu nowoczesnej stodoły. Modna i minimalistyczna bryła budynku skrywa obszerną strefę dzienną, aż 3 sypialnie, garderobę, 2 łazienki, spiżarnię i pomieszczenie gospodarcze. Do dyspozycji mieszkańców jest o wiele więcej, niż na pierwszy rzut oka mogłoby się wydawać.
Zaciekawiony? Chcesz poznać więcej szczegółów?
Koszt budowy
|
| 392 947 zł |
|---|---|
|
| 3 miesiące |
- Prefabrykacja ścian (konstrukcja z drewna KVH o przekroju 160×60 mm w ścianach zewnętrznych i 240×60 mm w przypadku stropów)
- Montaż prefabrykatu
- Zamknięta konstrukcja domu z pokryciem dachowym (dach pokryty blachodachówką wraz z membraną dachową)
- Energooszczędne drzwi zewnętrzne
- Stolarka okienna (okna PVC, 3–szybowe z 7–komorowym profilem ramy, o niskim współczynniku przenikania ciepła)
- Ocieplone ściany zewnętrzne
- Ściany wewnętrzne
Po stronie Inwestora pozostaje wykonanie wylewek i ocieplenie posadzki, montaż sufitów podwieszanych z ociepleniem, realizacja kompletu instalacji elektrycznej, sanitarnej i teletechnicznej, wykończenie elewacji budynku
|
| 555 602 zł |
|---|---|
|
| 4 miesiące |
- SSZ plus
- Wykonanie elewacji zewnętrznej - tynk
- Wykonanie wszelkich instalacji: wod-kan, elektrycznej, teletechnicznej,
- Zakup i montaż źródła ciepła (elektryczne maty grzewcze)
- Wykonanie wylewek betonowych wewnątrz budynku,
- Wykonanie sufitów podwieszanych wykończonych płytami G-K.
Po stronie inwestora pozostaje jedynie wykonanie podłóg (płytki, panele itp.), biały montaż, gładzie i malowanie
Dodatkowo, w cenie otrzymujesz:
- projekt
- zaplecze socjalne dla pracowników
Płatne opcje do wyboru:
- uzyskanie pozwolenia na budowę
- prace ziemne na działce i wykonanie płyty fundamentowej(fundamenty ocieplone obwodowo z wykorzystaniem styroduru, który chroni przed wilgocią i zapobiega utracie ciepła)
- możliwość wyboru innego rodzaju pokrycia dachowego
- zakup i montaż źródła ciepła (pompy ciepła, kotła gazowego) wraz z ogrzewaniem podłogowym lub grzejnikami
- zakup i montaż wentylacji mechanicznej wraz z jednostką rekuperacji marki Thessla Green
- dodatkowa możliwość instalacji systemów Smart Home
- kierownik budowy
Zapytaj o szczegółową wycenę,
zostaw nr telefonu oddzwonimy
Technologia
Elewacje i działka
Dom prefabrykowany parterowy Carina
GD-0104/Carina
Dowiedz się czy ten dom pasuje na Twoją działkę
Uzupełnij dane, nasz specjalista skontaktuje się z Tobą by zapytać Cię o niezbędne dane o Twojej działce
Podobne
Dom prefabrykowany parterowy P10
|
| 84,54 m² |
|---|---|
|
| Jednorodzinny wolnostojący |
|
| Bez garażu |
|
| 3 |
|
| 2 |
|
| 356 800 zł |
|
| 3 miesiące |
|
| Pomieszczenie gospodarcze |
|
| 84,54 m² |
|
| 104,00 m² |
|
| Prefabrykowana betonowa |
|
| Nie dotyczy |
|
| 21,00 m x 14,50 m |
|
| 16,00 m x 6,50 m |
|
| Klasa energooszczędna EP-30-70 kWh m2/rok |
|
| Całoroczne |
|
| 4,90 m |
|
| Nie dotyczy |
|
| Dwuspadowy |
|
| 30° |
|
| TAK |
|
| 68,00 kWh/(m²rok) |
|
| – |
|
| Mechaniczna |
|
| Gazowe |
|
| 490 880 zł |
|
| 3 miesiące |
|
| Parterowy |
|
| Nowoczesna stodoła |
|
| NIE |
| Producent | P. Homes |
|
| Nie uwzględniono w wycenie |
| Pow. użytkowa | 70-100 m² |
| Technologia | Betonowa/Keramzytowa |
Dom prefabrykowany parterowy HOMEKONCEPT 81
|
| 103,37 m² |
|---|---|
|
| Jednorodzinny wolnostojący |
|
| Bez garażu |
|
| 3 |
|
| 2 |
|
| 430 920 zł |
|
| 3 miesiące |
|
| Antresola, Kominek, Spiżarnia |
|
| 103,37 m² |
|
| 132,10 m² |
|
| Prefabrykowana drewniana |
|
| Nie dotyczy |
|
| 24,87 m x 15,94 m |
|
| 19,50 m x 9,60 m |
|
| Klasa energooszczędna EP-30-70 kWh m2/rok |
|
| Całoroczne |
|
| 6,75 m |
|
| Nie dotyczy |
|
| Dwuspadowy |
|
| 35° |
|
| TAK |
|
| 69,65 kWh/(m²rok) |
|
| 10,71 kWh/(m²rok) |
|
| Grawitacyjna |
|
| Brak |
|
| 610 200 zł |
|
| 4 miesiące |
|
| Parterowy |
|
| Nowoczesny, Nowoczesna stodoła |
|
| NIE |
| Producent | Tektum |
|
| Nie uwzględniono w wycenie |
| Pow. użytkowa | 100-130 m² |
| Technologia | Drewniana |
Dom prefabrykowany parterowy Grand House 59
|
| 59,00 m² |
|---|---|
|
| Bez garażu |
|
| 2 |
|
| 1 |
|
| 237 600 zł |
|
| 2 miesiące |
|
| Pomieszczenie gospodarcze |
|
| 59,00 m² |
|
| 77,00 m² |
|
| Modułowa, Prefabrykowana drewniana |
|
| Nie dotyczy |
|
| 14,29 m x 19,19 m |
|
| 6,29 m x 12,19 m |
|
| Klasa energooszczędna EP-30-70 kWh m2/rok |
|
| Całoroczne, Letniskowe |
|
| 5,77 m |
|
| Nie dotyczy |
|
| Dwuspadowy |
|
| 40° |
|
| TAK |
|
| 62,80 kWh/(m²rok) |
|
| – |
|
| Grawitacyjna |
|
| Elektryczne |
|
| 351 000 zł |
|
| 3 miesiące |
|
| Parterowy |
|
| Nowoczesna stodoła |
|
| Jednorodzinny wolnostojący, Rekreacyjny |
|
| TAK |
| Producent | Modularen |
|
| Nie uwzględniono w wycenie |
| Pow. użytkowa | 35-70 m² |
| Technologia | Drewniana |
Dom prefabrykowany parterowy Grand House 103
|
| 102,66 m² |
|---|---|
|
| Bez garażu |
|
| 3 |
|
| 2 |
|
| 372 600 zł |
|
| 2 miesiące |
|
| Garderoba, Pomieszczenie gospodarcze |
|
| 102,66 m² |
|
| 127,00 m² |
|
| Modułowa, Prefabrykowana drewniana |
|
| Nie dotyczy |
|
| 23,29 m x 15,82 m |
|
| 16,29 m x 7,82 m |
|
| Klasa energooszczędna EP-30-70 kWh m2/rok |
|
| Całoroczne |
|
| 6,08 m |
|
| Nie dotyczy |
|
| Dwuspadowy |
|
| 35° |
|
| TAK |
|
| 62,80 kWh/(m²rok) |
|
| – |
|
| Grawitacyjna |
|
| Elektryczne |
|
| 518 400 zł |
|
| 3 miesiące |
|
| Parterowy |
|
| Nowoczesna stodoła |
|
| Jednorodzinny wolnostojący, Rekreacyjny |
|
| TAK |
| Producent | Modularen |
|
| Nie uwzględniono w wycenie |
| Pow. użytkowa | 100-130 m² |
| Technologia | Drewniana |
Powierzchnia i wymiary
|
| 115,50 m² |
|---|---|
|
| 115,50 m² |
|
| 144,00 m² |
|
| Nie dotyczy |
|
| 25,98 m x 15,98 m |
|
| 17,98 m x 7,98 m |
|
| 6,98 m |
|
| Nie dotyczy |
|
| Dwuspadowy |
|
| 40° |
Energooszczędność
|
| 40,00 kWh/(m²rok) |
|---|---|
|
| – |
|
| Grawitacyjna |
|
| Elektryczne |





