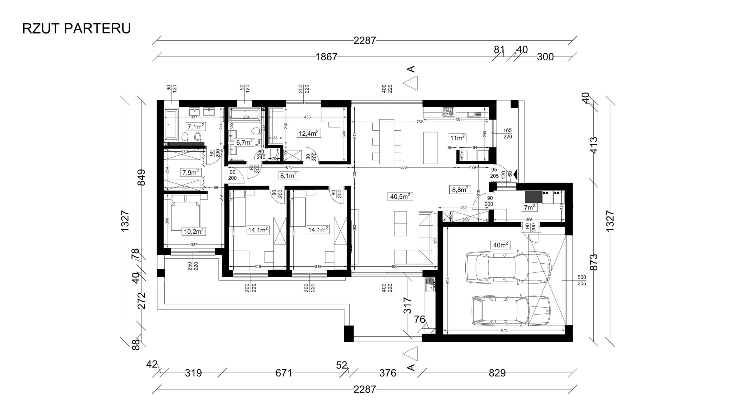
Decydując się na nowy dom pamiętaj, że będziesz w nim przebywał przez około połowę swojego życia. Wiedząc o tym warto wybrać taki, który zapewni tobie i twojej rodzinie komfortowe warunki na długi czas. Niewątpliwie takim domem jest oferujący 187,90 m² powierzchni użytkowej Taurus, który idealnie sprawdzi się dla większej rodziny.
Zaciekawiony? Chcesz poznać więcej szczegółów?
Koszt budowy
|
| 633 532 zł |
|---|---|
|
| 3 miesiące |
- Prefabrykacja ścian (konstrukcja z drewna KVH o przekroju 160×60 mm w ścianach zewnętrznych i 240×60 mm w przypadku stropów)
- Montaż prefabrykatu
- Zamknięta konstrukcja domu z pokryciem dachowym (dach pokryty blachodachówką wraz z membraną dachową)
- Energooszczędne drzwi zewnętrzne
- Stolarka okienna (okna PVC, 3–szybowe z 7–komorowym profilem ramy, o niskim współczynniku przenikania ciepła)
- Ocieplone ściany zewnętrzne
- Ściany wewnętrzne
Po stronie Inwestora pozostaje wykonanie wylewek i ocieplenie posadzki, montaż sufitów podwieszanych z ociepleniem, realizacja kompletu instalacji elektrycznej, sanitarnej i teletechnicznej, wykończenie elewacji budynku
|
| 899 143 zł |
|---|---|
|
| 4 miesiące |
- SSZ plus
- Wykonanie elewacji zewnętrznej - tynk
- Wykonanie wszelkich instalacji: wod-kan, elektrycznej, teletechnicznej,
- Zakup i montaż źródła ciepła (elektryczne maty grzewcze)
- Wykonanie wylewek betonowych wewnątrz budynku,
- Wykonanie sufitów podwieszanych wykończonych płytami G-K.
Po stronie inwestora pozostaje jedynie wykonanie podłóg (płytki, panele itp.), biały montaż, gładzie i malowanie
Dodatkowo, w cenie otrzymujesz:
- projekt
- zaplecze socjalne dla pracowników
Płatne opcje do wyboru:
- uzyskanie pozwolenia na budowę
- prace ziemne na działce i wykonanie płyty fundamentowej(fundamenty ocieplone obwodowo z wykorzystaniem styroduru, który chroni przed wilgocią i zapobiega utracie ciepła)
- możliwość wyboru innego rodzaju pokrycia dachowego
- zakup i montaż źródła ciepła (pompy ciepła, kotła gazowego) wraz z ogrzewaniem podłogowym lub grzejnikami
- zakup i montaż wentylacji mechanicznej wraz z jednostką rekuperacji marki Thessla Green
- dodatkowa możliwość instalacji systemów Smart Home
- kierownik budowy
Zapytaj o szczegółową wycenę,
zostaw nr telefonu oddzwonimy
Technologia
Elewacje i działka
Dom prefabrykowany parterowy Taurus
GD-0116/Taurus
Dowiedz się czy ten dom pasuje na Twoją działkę
Uzupełnij dane, nasz specjalista skontaktuje się z Tobą by zapytać Cię o niezbędne dane o Twojej działce
Podobne
Dom prefabrykowany z poddaszem użytkowym HOMEKONCEPT 91
|
| 133,45 m² |
|---|---|
|
| Jednorodzinny wolnostojący |
|
| 2 i więcej stanowisk |
|
| 3 |
|
| 2 |
|
| 691 114 zł |
|
| 3 miesiące |
|
| Garderoba, Kominek, Pomieszczenie gospodarcze, Pralnia, Spiżarnia, Zadaszony taras |
|
| 144,65 m² |
|
| 165,24 m² |
|
| Prefabrykowana drewniana |
|
| 41,17 m² |
|
| 29,62 m x 15,71 m |
|
| 24,12 m x 9,71 m |
|
| Klasa energooszczędna EP-30-70 kWh m2/rok |
|
| Całoroczne |
|
| 7,24 m |
|
| Nie dotyczy |
|
| Dwuspadowy |
|
| 35° |
|
| TAK |
|
| 69,40 kWh/(m²rok) |
|
| 28,50 kWh/(m²rok) |
|
| Grawitacyjna |
|
| Brak |
|
| 940 594 zł |
|
| 4 miesiące |
|
| Z poddaszem użytkowym |
|
| Nowoczesny |
|
| NIE |
| Producent | Tektum |
|
| Nie uwzględniono w wycenie |
| Pow. użytkowa | 130-160 m² |
| Technologia | Drewniana |
Dom prefabrykowany parterowy HOMEKONCEPT 118 G2
|
| 133,78 m² |
|---|---|
|
| Jednorodzinny wolnostojący |
|
| 2 i więcej stanowisk |
|
| 3 |
|
| 2 |
|
| 646 920 zł |
|
| 3 miesiące |
|
| Antresola, Garderoba, Kominek, Master bedroom, Pomieszczenie gospodarcze, Spiżarnia |
|
| 133,78 m² |
|
| 220,53 m² |
|
| Prefabrykowana drewniana |
|
| 38,94 m² |
|
| 29,42 m x 22,82 m |
|
| 22,42 m x 14,81 m |
|
| Klasa energooszczędna EP-30-70 kWh m2/rok |
|
| Całoroczne |
|
| 6,92 m |
|
| 3,43 m |
|
| Dwuspadowy |
|
| 40° |
|
| TAK |
|
| – |
|
| – |
|
| Grawitacyjna |
|
| Brak |
|
| 924 480 zł |
|
| 4 miesiące |
|
| Parterowy |
|
| Nowoczesna stodoła |
|
| NIE |
| Producent | Tektum |
|
| Nie uwzględniono w wycenie |
| Pow. użytkowa | 130-160 m² |
| Technologia | Drewniana |
Dom prefabrykowany z poddaszem użytkowym P12
|
| 154,12 m² |
|---|---|
|
| Jednorodzinny wolnostojący |
|
| 2 i więcej stanowisk |
|
| 5 |
|
| 2 |
|
| 671 610 zł |
|
| 3 miesiące |
|
| Garderoba, Pomieszczenie gospodarcze |
|
| 163,12 m² |
|
| 147,44 m² |
|
| Prefabrykowana betonowa |
|
| 36,86 m² |
|
| 25,75 m x 18,00 m |
|
| 17,75 m x 11,00 m |
|
| Klasa energooszczędna EP-30-70 kWh m2/rok |
|
| Całoroczne |
|
| 8,59 m |
|
| 4,82 m |
|
| Dwuspadowy |
|
| 45° |
|
| NIE |
|
| 68,00 kWh/(m²rok) |
|
| – |
|
| Mechaniczna |
|
| Gazowe |
|
| 893 010 zł |
|
| 3 miesiące |
|
| Z poddaszem użytkowym |
|
| Nowoczesny |
|
| NIE |
| Producent | P. Homes |
|
| Nie uwzględniono w wycenie |
| Pow. użytkowa | 130-160 m² |
| Technologia | Betonowa/Keramzytowa |
Dom prefabrykowany z poddaszem użytkowym HOMEKONCEPT 79
|
| 162,18 m² |
|---|---|
|
| Jednorodzinny wolnostojący |
|
| 2 i więcej stanowisk |
|
| 4 |
|
| 3 |
|
| 627 005 zł |
|
| 3 miesiące |
|
| Garderoba, Kominek, Master bedroom, Pralnia, Spiżarnia, Zadaszony taras |
|
| 174,82 m² |
|
| 174,64 m² |
|
| Prefabrykowana drewniana |
|
| 38,33 m² |
|
| 20,42 m x 22,72 m |
|
| 13,70 m x 17,85 m |
|
| Klasa energooszczędna EP-30-70 kWh m2/rok |
|
| Całoroczne |
|
| 7,96 m |
|
| Nie dotyczy |
|
| Dwuspadowy |
|
| 37° |
|
| TAK |
|
| 69,69 kWh/(m²rok) |
|
| 11,20 kWh/(m²rok) |
|
| Grawitacyjna |
|
| Brak |
|
| 953 165 zł |
|
| 4 miesiące |
|
| Z poddaszem użytkowym |
|
| Nowoczesny |
|
| NIE |
| Producent | Tektum |
|
| Nie uwzględniono w wycenie |
| Pow. użytkowa | pow. 160 m² |
| Technologia | Drewniana |
Powierzchnia i wymiary
|
| 187,90 m² |
|---|---|
|
| 187,90 m² |
|
| 253,00 m² |
|
| Nie dotyczy |
|
| 21,27 m x 31,87 m |
|
| 13,27 m x 22,87 m |
|
| 5,60 m |
|
| Nie dotyczy |
|
| Dwuspadowy |
|
| 25° |
Energooszczędność
|
| 40,00 kWh/(m²rok) |
|---|---|
|
| – |
|
| Grawitacyjna |
|
| Elektryczne |




