Prenovi 166 w stylistyce nowoczesnej stodoły to dom w którym wewnętrzny układ pomieszczeń wyróżnia się funkcjonalnością i ergonomią.
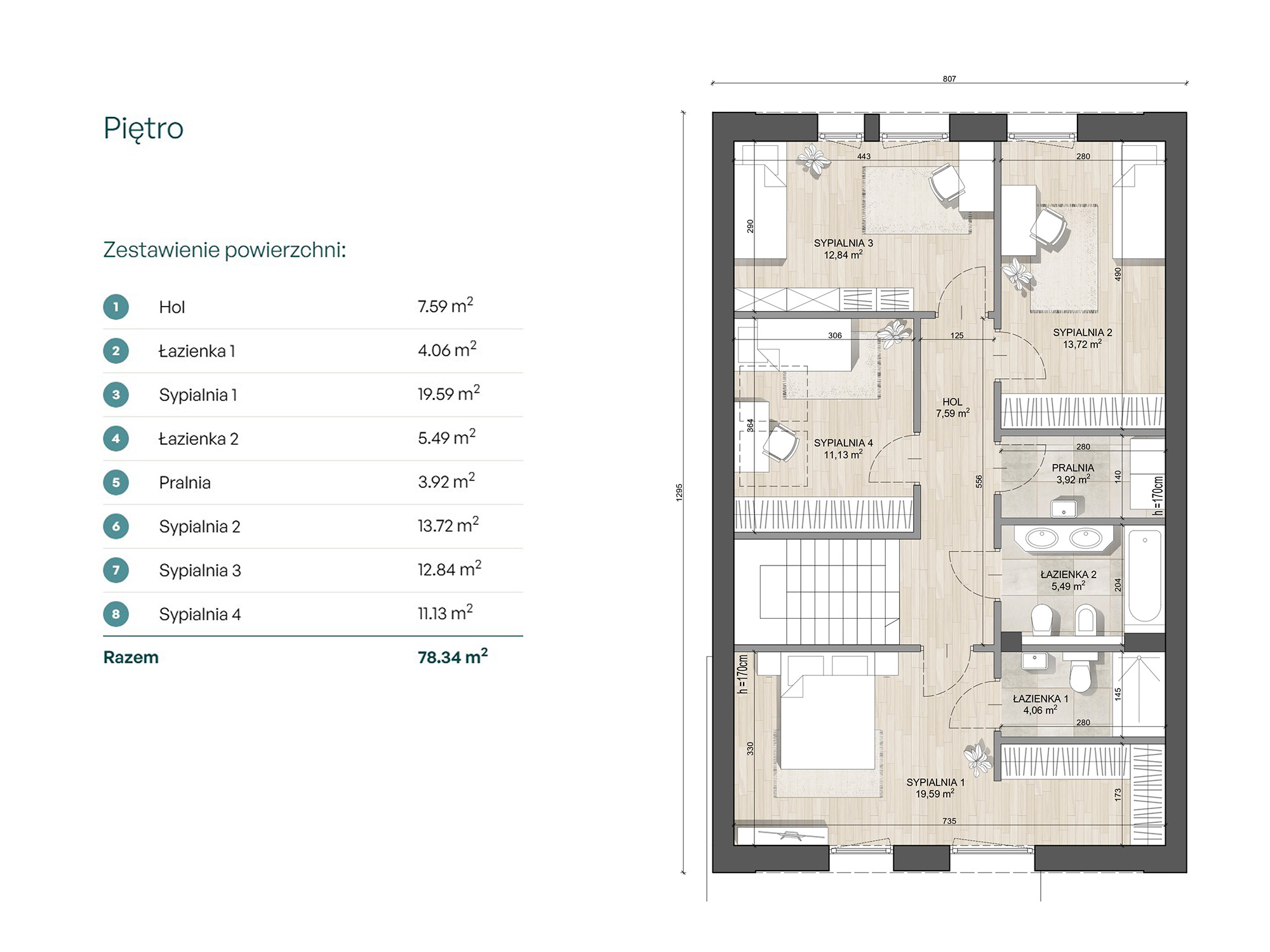
Parter składa się z salonu z jadalnią (47 m²) i otwartej kuchni, gabinetu mogącego pełnić funkcję pokoju gościnnego oraz łazienki. Na piętrze znajduje się główna sypialnia z prywatną łazienką i garderobą, pralnia oraz trzy dodatkowe sypialnie.
Zaciekawiony? Chcesz poznać więcej szczegółów?
Koszt budowy
|
| 546 860 zł |
|---|---|
|
| 4 miesiące |
- Płyta fundamentowa żelbetowa o grubości w granicach ok. 20-25 cm zgodnie z projektem konstrukcyjnym
- Docieplenie pionowe Styrodurem XPS lub Styropianem, 10 cm, mim. Λ - 0,031 W/m²K
- Ściany zewnętrzne prefabrykowane dwuwarstwowe o konstrukcji rdzenia nośnego żelbetowego o gr. min. 14 cm i izolacji termicznej z płyt styropianowych 20cm, min. Λ - 0,035W/m²K
- Stropy prefabrykowane w technologii płyt kanałowych HC, monolityzowane na budowie
- Schody prefabrykowane jednobiegowe lub dwubiegowe w zależności od typu budynku w technologii żelbetowej – niewykończone
- Dach (w przypadku typu domu z dachem spadzistym), więźba dachowa drewniana, pokrycie dachu – blacha na rąbek (bez podejść kominiarskich i śniegochwytów na dachu), ocieplenie wełną mineralna gr. 25 cm min. Λ - 0,035W/m²K
- Stropodach (w przypadku typu domu z dachem płaskim) paroizoalcja + izolacja termiczna z płyt styropianowych gr. min. 24 cm - 0,036 W/m²K + warstwy spadkowe + welon szklany + membrana PVC mocowana mechanicznie, pokrycie i izolacja przeciwwodna stropodachu membraną dachową PVC lub z EPDM,
- Orynnowanie i rury spustowe systemowe stalowe lub z PCV
- Wyłaz dachowy
- Drzwi wejściowe metalowe klasy RC2 w zależności od typu domu z doświetleniem lub bez
- Stolarka zewnętrzna aluminiowa, okna trzyszybowe, szyby zespolone, w części salonowej okno rozsuwne typu HS
- Parapety zewnętrzne metalowe, malowane
|
| 739 000 zł |
|---|---|
|
| 6 miesięcy |
- SSZ plus
- Wewnętrzna instalacja sanitarna rozprowadzona pionowo i poziomo
- Wewnętrzna instalacja wody zimnej i ciepłej obejmuje wykonanie kompletnego, rozprowadzenia pionowego i poziomego rur PEX lub PERT łączonych przez, zaciskanie lub zaprasowywanie (PEX, PERT)
- Rurociągi oraz ich prowadzenie - poziomy instalacji prowadzone będą trójnikowo lub system rozdzielaczowym, piony i poziomy instalacji zostaną wykonane z rur typu PEX lub innego podobnego materiału
- Wentylacja: wymuszona wywiewna higrosterowana – wentylator obsługujący budynek zlokalizowany na dachu, nawiew przez nawiewniki okiennie ścienne i/lub ścienne
- Źródło ciepła dla instalacji centralnego ogrzewania i wody ciepłej - indywidualna pompa ciepła typu All in One (marki np. Panasonic, NeoHeat, York, Gree, Kaisai), z jednostką zewnętrzną z rozprowadzeniem w pionie i poziomie. Klasa sezonowej efektywności energetycznej min. A++
- Element grzejny w formie ogrzewania podłogowego wodnego pompowego
- Pełne okablowanie elektroenergetyczne, teletechniczne wraz tablicą rozdzielczą
- Zabezpieczenie niskoprądowe i różnicowoprądowe w tablicy rozdzielni
- Ilość i lokalizację punktów elektrycznych, tablicy rozdzielczej zgodnie z rysunkami do umowy
- Ściany wewnętrzne i w technologii suchej zabudowy z płyt GK i OSB, szpachlowane łączenia
- Sufity podwieszone w typach budynków z poddaszami, w technologii suchej zabudowy z płyt GK ze szpachlowaniem łączeń, ocieplenie wełną mineralna gr. 25cm min. Λ - 0,035W/m2K
- Elewacja i cokół w technologii lekko mokrej, biała ze wstawkami z tynku tzw. „ryflowanego”
- Posadzka parter: izolacja pozioma (nad płytą fundamentową) styropian gr. 12 cm, mim. Λ - 0,036 W/m²K, wylewka cementowa mim. 5 cm, wraz z ogrzewaniem podłogowym
- Posadzka na piętrze: strop (płyty HC), na stropie styropian min. 5 cm oraz wylewka cementowa mim. 5 cm wraz z ogrzewaniem podłogowym
Nie wykonuje się drzwi wewnętrznych (pozostawione otwory szerokości 90x210 cm (odchylenie: +-3 cm)), parapetów wewnętrznych, wykończenia schodów wewnętrznych i balustrad, warstw wykończeniowych podłóg oraz sufitów, tynków wewnętrznych, malowania, montażu białego osprzętu sanitarnego oraz elektrycznego.
Dodatkowo, w cenie otrzymujesz:
- Projekt architektoniczno-budowlany oraz techniczny do adaptacji
Płatne opcje do wyboru:
- Adaptacja projektu i przygotowanie wniosku o pozwolenie na budowę
- Przygotowanie placu budowy
- Transport elementów prefabrykowanych
- Modyfikacja ścian działowych
- Rolety
- Klimatyzacja
- Garaż
- Kolorystyka i struktura materiałów na elewacji (np. klinkier, elastholit, płyty HPL
- Kolorystyka stolarki aluminiowej okiennej i drzwiowej
Zapytaj o szczegółową wycenę,
zostaw nr telefonu oddzwonimy
Technologia
Prefabrykacja betonowa to kolejny etap budowlanej transformacji. Zyskuje ona na świecie coraz większą popularność i wypiera tradycyjne metody budowy. Od lat dominuje w budownictwie w Skandynawii, USA, Niemczech czy Nowej Zelandii.
Produkcja w ściśle kontrolowanych warunkach w zakładzie prefabrykacji zapewnia większą precyzję wykonania w porównaniu z innymi metodami.
Montaż domu może być prowadzony w każdych warunkach pogodowych, a jakość wykonania uodparnia dom na działanie zewnętrznych czynników takich jak: woda, wiatr, temperatura.
Elewacje i działka
Dom prefabrykowany z poddaszem użytkowym Prenovi 166
GD-0339/Prenovi166
Dowiedz się czy ten dom pasuje na Twoją działkę
Uzupełnij dane, nasz specjalista skontaktuje się z Tobą by zapytać Cię o niezbędne dane o Twojej działce
Podobne
Dom prefabrykowany z poddaszem użytkowym Rest House 66
|
| 62,84 m² |
|---|---|
|
| Bez garażu |
|
| 1 |
|
| 1 |
|
| 302 400 zł |
|
| 2 miesiące |
|
| Antresola |
|
| 66,00 m² |
|
| 54,64 m² |
|
| Modułowa, Prefabrykowana drewniana |
|
| Nie dotyczy |
|
| 13,79 m x 17,43 m |
|
| 5,79 m x 9,43 m |
|
| Klasa energooszczędna EP-30-70 kWh m2/rok |
|
| Całoroczne, Letniskowe |
|
| 6,98 m |
|
| Nie dotyczy |
|
| Dwuspadowy |
|
| 40° |
|
| TAK |
|
| 62,80 kWh/(m²rok) |
|
| – |
|
| Grawitacyjna |
|
| Elektryczne |
|
| 383 400 zł |
|
| 3 miesiące |
|
| Z poddaszem użytkowym |
|
| Nowoczesna stodoła |
|
| Jednorodzinny wolnostojący, Rekreacyjny |
|
| TAK |
| Producent | Modularen |
|
| Nie uwzględniono w wycenie |
| Pow. użytkowa | 35-70 m² |
| Technologia | Drewniana |
Dom prefabrykowany z poddaszem użytkowym Timber Haven No.01
|
| 114,94 m² |
|---|---|
|
| Bez garażu |
|
| 3 |
|
| 2 |
|
| 378 000 zł |
|
| 3 miesiące |
|
| Antresola, Pomieszczenie gospodarcze |
|
| 140,11 m² |
|
| 117,23 m² |
|
| Prefabrykowana drewniana |
|
| Nie dotyczy |
|
| 25,91 m x 15,97 m |
|
| 17,91 m x 7,97 m |
|
| – |
|
| Całoroczne |
|
| 6,02 m |
|
| Nie dotyczy |
|
| Dwuspadowy |
|
| 35° |
|
| TAK |
|
| – |
|
| – |
|
| Grawitacyjna |
|
| Brak |
|
| 497 934 zł |
|
| 5 miesięcy |
|
| Z poddaszem użytkowym |
|
| Nowoczesna stodoła |
|
| Jednorodzinny wolnostojący |
|
| NIE |
| Producent | JAK Modules |
|
| Nie uwzględniono w wycenie |
| Pow. użytkowa | 100-130 m² |
| Technologia | Drewniana |
Dom prefabrykowany z poddaszem użytkowym P7
|
| 94,34 m² |
|---|---|
|
| Jednorodzinny wolnostojący |
|
| Bez garażu |
|
| 4 |
|
| 2 |
|
| 361 221 zł |
|
| 3 miesiące |
|
| Pomieszczenie gospodarcze |
|
| 104,22 m² |
|
| 69,42 m² |
|
| Prefabrykowana betonowa |
|
| Nie dotyczy |
|
| 14,86 m x 16,12 m |
|
| 10,12 m x 6,86 m |
|
| Klasa energooszczędna EP-30-70 kWh m2/rok |
|
| Całoroczne |
|
| 7,57 m |
|
| Nie dotyczy |
|
| Dwuspadowy |
|
| 35° – 45° |
|
| TAK |
|
| 68,00 kWh/(m²rok) |
|
| – |
|
| Mechaniczna |
|
| Gazowe |
|
| 527 830 zł |
|
| 3 miesiące |
|
| Z poddaszem użytkowym |
|
| Nowoczesny |
|
| NIE |
| Producent | P. Homes |
|
| Nie uwzględniono w wycenie |
| Pow. użytkowa | 70-100 m² |
| Technologia | Betonowa/Keramzytowa |
Dom prefabrykowany z poddaszem użytkowym Gemini
|
| 119,10 m² |
|---|---|
|
| W zabudowie bliźniaczej |
|
| Bez garażu |
|
| 4 |
|
| 2 |
|
| 461 210 zł |
|
| 3 miesiące |
|
| Pomieszczenie gospodarcze |
|
| 135,30 m² |
|
| 191,60 m² |
|
| Modułowa, Prefabrykowana drewniana |
|
| Nie dotyczy |
|
| 26,02 m x 19,62 m |
|
| 18,02 m x 11,62 m |
|
| Klasa energooszczędna EP-30-70 kWh m2/rok |
|
| Całoroczne |
|
| 7,75 m |
|
| Nie dotyczy |
|
| Dwuspadowy |
|
| 45° |
|
| TAK |
|
| 40,00 kWh/(m²rok) |
|
| – |
|
| Grawitacyjna |
|
| Elektryczne |
|
| 646 896 zł |
|
| 4 miesiące |
|
| Z poddaszem użytkowym |
|
| Nowoczesny |
|
| NIE |
| Producent | HausWerk |
|
| Nie uwzględniono w wycenie |
| Pow. użytkowa | 100-130 m² |
| Technologia | Drewniana |
Powierzchnia i wymiary
|
| 160,28 m² |
|---|---|
|
| 166,16 m² |
|
| 104,50 m² |
|
| Nie dotyczy |
|
| 16,10 m x 21,00 m |
|
| 8,10 m x 12,95 m |
|
| 8,85 m |
|
| 5,13 m |
|
| Dwuspadowy |
|
| 42° |
Energooszczędność
|
| 68,11 kWh/(m²rok) |
|---|---|
|
| 42,56 kWh/(m²rok) |
|
| Mechaniczna |
|
| Pompa ciepła |






