Zaciekawiony? Chcesz poznać więcej szczegółów?
Koszt budowy
|
| 276 480 zł |
|---|---|
|
| 2 miesiące |
- Ściany zewnętrzne, drewno konstrukcyjne suche C24 (10-12% wilgotności), najwyższej jakości kalibrowane, strugane, zabezpieczone środkami biologicznymi i przeciwpożarowymi
- Ocieplenie ścian - wełna bazaltowa Izovat grubość 200 mm
- Ocieplenie dachu i podłogi - wełna mineralna Knauf 250 mm
- Elewacja, blacha elewacyjna 0,35 mm lub deska świerkowa impregnowana 12 mm
- Ściany wewnętrzne, izolacja ścian - wełna bazaltowa Izovat grubość 50 mm
- Okna PCV Steko, 3 szybowe, 6 komorowe, okucia Maco, 4 zawiasy iQ, w standardzie kolor biały
- Konstrukcja dachu - drewno konstrukcyjne suche C24 (10-12% wilgotności), najwyższej jakości kalibrowane, strugane, zabezpieczone środkami biologicznymi i przeciwpożarowymi
- Pokrycie dachowe, blacha trapezowa stalowa T-35 Ral, 0,45 mm, w kolorze grafitowym
- Drzwi zewnętrzne antywłamaniowe do wyboru
|
| 325 901 zł |
|---|---|
|
| 4 miesiące |
- SSZ plus
- Ściany wykończone płytami OSB lub gipsowo-kartonowymi wewnątrz domu
- Instalacja elektryczna wraz z rozdzielnią
- Instalacja wodno-kanalizacyjna
Dodatkowo, w cenie otrzymujesz:
- Projekt budowlano konstrukcyjny domu, instalacji elektrycznej, instalacji wodno-kanalizacyjnej
- Kierownik budowy
Płatne opcje do wyboru:
- Fundament
- Taras
- Zadaszenie tarasu
Zapytaj o szczegółową wycenę,
zostaw nr telefonu oddzwonimy
Technologia
Nowoczesna technologia produkcji
Domy modułowe to kwintesencja skandynawskiej jakości, zarówno pod względem technologii produkcji, jak i minimalistycznego designu. Dzięki fabrycznej produkcji każdy element domu jest tworzony w kontrolowanych warunkach, co eliminuje ryzyko błędów montażowych i zapewnia doskonałą precyzję wykonania.
Szybki proces budowy
Dzięki prefabrykowanym modułom, budowa domu modułowego jest znacznie szybsza niż w tradycyjnych metodach. Większość prac odbywa się w fabryce, a na miejscu budowy moduły są tylko montowane, co pozwala postawić dom w zaledwie kilka dni.
Ekologiczne i energooszczędne rozwiązania
Domy modułowe oparte na szkielecie drewnianym są przyjazne dla środowiska. Wykorzystanie naturalnych materiałów i nowoczesnych technologii ocieplania sprawia, że domy te są energooszczędne, co znacząco obniża koszty eksploatacji.
Wysoka jakość i trwałość
Dzięki precyzyjnemu procesowi produkcji, domy modułowe są wyjątkowo trwałe i odporne na warunki atmosferyczne. Każdy element jest testowany przed montażem, co zapewnia wyższą jakość i długowieczność budynku.
Elewacje i działka
Dom modułowy parterowy Naturkoncept 64
GD-0309/Naturkoncept64
Dowiedz się czy ten dom pasuje na Twoją działkę
Uzupełnij dane, nasz specjalista skontaktuje się z Tobą by zapytać Cię o niezbędne dane o Twojej działce
Podobne
Dom prefabrykowany parterowy Piccolo Bosco
|
| 96,64 m² |
|---|---|
|
| Jednorodzinny wolnostojący |
|
| Bez garażu |
|
| 3 |
|
| 2 |
|
| 341 896 zł |
|
| 3 miesiące |
|
| Pomieszczenie gospodarcze |
|
| 96,64 m² |
|
| 115,50 m² |
|
| Prefabrykowana keramzytowa |
|
| Nie dotyczy |
|
| 16,35 m x 22,35 m |
|
| 8,35 m x 14,35 m |
|
| Klasa energooszczędna EP-30-70 kWh m2/rok |
|
| Całoroczne |
|
| 5,53 m |
|
| – |
|
| Dwuspadowy |
|
| 30° |
|
| TAK |
|
| 50,00 kWh/(m²rok) |
|
| – |
|
| Mechaniczna |
|
| Brak |
|
| 499 716 zł |
|
| 6 miesięcy |
|
| Parterowy |
|
| Nowoczesna stodoła |
|
| NIE |
| Producent | Abakon |
|
| Uwzględniono w wycenie |
| Pow. użytkowa | 70-100 m² |
| Technologia | Betonowa/Keramzytowa |
Dom prefabrykowany parterowy Grand House 59
|
| 59,00 m² |
|---|---|
|
| Bez garażu |
|
| 2 |
|
| 1 |
|
| 237 600 zł |
|
| 2 miesiące |
|
| Pomieszczenie gospodarcze |
|
| 59,00 m² |
|
| 77,00 m² |
|
| Modułowa, Prefabrykowana drewniana |
|
| Nie dotyczy |
|
| 14,29 m x 19,19 m |
|
| 6,29 m x 12,19 m |
|
| Klasa energooszczędna EP-30-70 kWh m2/rok |
|
| Całoroczne, Letniskowe |
|
| 5,77 m |
|
| Nie dotyczy |
|
| Dwuspadowy |
|
| 40° |
|
| TAK |
|
| 62,80 kWh/(m²rok) |
|
| – |
|
| Grawitacyjna |
|
| Elektryczne |
|
| 351 000 zł |
|
| 3 miesiące |
|
| Parterowy |
|
| Nowoczesna stodoła |
|
| Jednorodzinny wolnostojący, Rekreacyjny |
|
| TAK |
| Producent | Modularen |
|
| Nie uwzględniono w wycenie |
| Pow. użytkowa | 35-70 m² |
| Technologia | Drewniana |
Dom prefabrykowany parterowy HOMEKONCEPT 44
|
| 99,80 m² |
|---|---|
|
| Jednorodzinny wolnostojący |
|
| Bez garażu |
|
| 3 |
|
| 2 |
|
| 322 920 zł |
|
| 3 miesiące |
|
| Garderoba, Kominek, Pralnia, Spiżarnia, Zadaszony taras |
|
| 99,80 m² |
|
| 130,04 m² |
|
| Prefabrykowana drewniana |
|
| Nie dotyczy |
|
| 25,00 m x 16,87 m |
|
| 21,50 m x 9,25 m |
|
| Klasa energooszczędna EP-30-70 kWh m2/rok |
|
| Całoroczne |
|
| 7,42 m |
|
| 3,61 m |
|
| Dwuspadowy |
|
| 35° |
|
| NIE |
|
| 68,48 kWh/(m²rok) |
|
| 13,60 kWh/(m²rok) |
|
| Grawitacyjna |
|
| Brak |
|
| 506 520 zł |
|
| 4 miesiące |
|
| Parterowy |
|
| Nowoczesny, Tradycyjny |
|
| NIE |
| Producent | Tektum |
|
| Nie uwzględniono w wycenie |
| Pow. użytkowa | 70-100 m² |
| Technologia | Drewniana |
Dom prefabrykowany parterowy Grand House 78
|
| 78,11 m² |
|---|---|
|
| Bez garażu |
|
| 2 |
|
| 1 |
|
| 302 400 zł |
|
| 2 miesiące |
|
| Garderoba, Pomieszczenie gospodarcze |
|
| 78,11 m² |
|
| 98,00 m² |
|
| Modułowa, Prefabrykowana drewniana |
|
| Nie dotyczy |
|
| 19,54 m x 15,82 m |
|
| 12,54 m x 7,82 m |
|
| Klasa energooszczędna EP-30-70 kWh m2/rok |
|
| Całoroczne, Letniskowe |
|
| 6,08 m |
|
| Nie dotyczy |
|
| Dwuspadowy |
|
| 35° |
|
| TAK |
|
| 62,80 kWh/(m²rok) |
|
| – |
|
| Grawitacyjna |
|
| Elektryczne |
|
| 421 200 zł |
|
| 3 miesiące |
|
| Parterowy |
|
| Nowoczesna stodoła |
|
| Jednorodzinny wolnostojący, Rekreacyjny |
|
| TAK |
| Producent | Modularen |
|
| Nie uwzględniono w wycenie |
| Pow. użytkowa | 70-100 m² |
| Technologia | Drewniana |
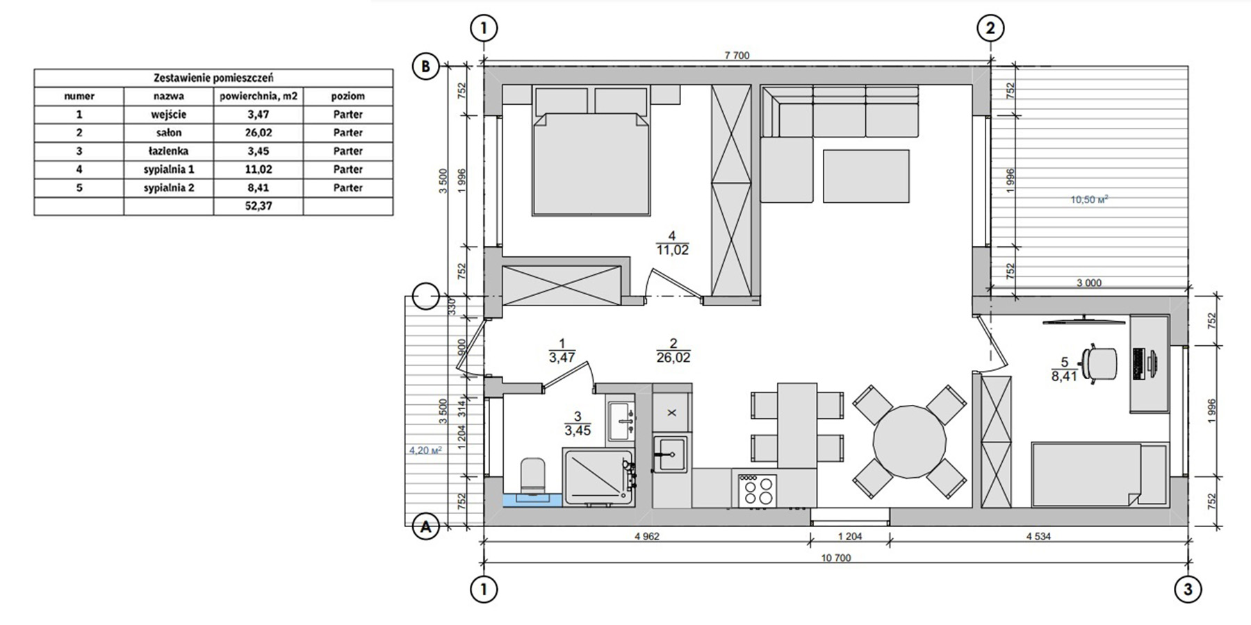
Powierzchnia i wymiary
|
| 52,37 m² |
|---|---|
|
| 52,37 m² |
|
| 64,00 m² |
|
| Nie dotyczy |
|
| 17,70 m x 14,00 m |
|
| 10,70 m x 7,00 m |
|
| 3,80 m |
|
| Nie dotyczy |
|
| Dwuspadowy |
|
| 10° |
Energooszczędność
|
| 61,70 kWh/(m²rok) |
|---|---|
|
| – |
|
| Mechaniczna |
|
| Brak |










