Dom HOMEKONCEPT 45 to interesująca propozycja dla osób szukających nowoczesnego domu parterowego o prostej bryle oraz bardzo komfortowym i przemyślanym układzie funkcjonalnym. Szczególną uwagę zwraca ozdobne belkowanie przylegające do budynku, które może pełnić rolę niezadaszonej wiaty na samochód osobowy. Na elewacji ogrodowej zaprojektowano również ażurową osłonę tarasu, chroniącą przed nadmiernym nasłonecznieniem. Elewacja domu skomponowana z tynku oraz naturalnego drewna, doskonale komponuje się z szarą, płaską dachówką.
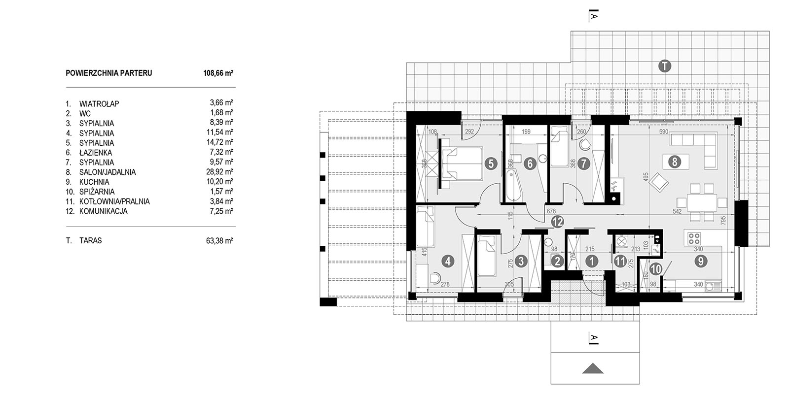
Piękny, słoneczny salon został zaprojektowany na planie kwadratu, dzięki czemu jest on bardzo ustawny i zapewnia wszystkim domownikom komfortową przestrzeń do życia. W centralnej części znajduje się kominek, który w czasie chłodniejszych dni z powodzeniem dogrzeje wszystkie pomieszczenia parteru. Częściowo zamknięta blatem roboczym kuchnia jest połączona z praktyczną spiżarnią. W części nocnej do dyspozycji mieszkańców są 4 bardzo wygodne pokoje, w tym sypialnia małżeńska z prywatną garderobą. Obok znajduje się duża łazienka z wanną i prysznicem oraz dodatkowa toaleta. Kotłownia z funkcją pralni jest dostępna bezpośrednio z wiatrołapu.
Projekt HOMEKONCEPT 45 z pewnością spodoba się osobom szukającym niewielkiego domu o prostej konstrukcji, który zachwyca bardzo oryginalną aranżacją elementów elewacji, bardzo nowoczesną stylistyką oraz wygodnymi wnętrzami mieszczącymi 4 sypialnie.
Zaciekawiony? Chcesz poznać więcej szczegółów?
Koszt budowy
|
| 354 200 zł |
|---|---|
|
| 3 miesiące |
- Konstrukcja drewniana 195 x 45 mm (certyfikat C24) zależne od wielkości budynku, strugana czterostronnie - fazowana, suszona do max 16-18% wilgotności
- Tynk silikatowo-silikonowy 1,5 mm - kolor do wyboru
- Płyta Steico Protect
- Okna PVC 3-szybowe, kolor do wyboru z zewnątrz, wewnątrz białe
- Okno tarasowe z ruchomym słupkiem
- Dach - krokwie lite KVH 180 x 60 mm, strugane czterostronnie - fazowane, suszone do max 16-18% wilgotności, podbitka malowana na wybrany kolor farbami Teknos, blachodachówka Bratex, orynnowanie metalowe, ława i stopnie kominiarskie (gwarancja 45 lat)
- Drzwi - KMT Passive, metalowe
- Strop - belki stropowe KVH 180 x 60 mm (certyfikat C24) - strugane czterostronnie - fazowana, suszona do max 16-18% wilgotności, deska stropopodłogowa 28 mm (strop otwarty) / OSB 22 mm
- Ściany działowe - stelaż 95 x 45 mm i 145 x 45 mm
- Schody strychowe
- Parapety zewnętrzne metalowe - kolor do wyboru
- Komin systemowy z podwójnym kanałem wentylacyjny
- Kominki wentylacyjne 3 szt.
|
| 506 200 zł |
|---|---|
|
| 5 miesięcy |
- SSZ plus
- Ściany zewnętrzne - Steico Zell 200 mm, stelaż drewniany 38 x 63 mm, folia paroizolacyjna, płyta karton-gips lub boazeria
- Ściany wewnętrzne - wełna kamienna 100 mm w płytach Paroc, płyta karton-gips lub boazeria
- Strop - stelaż drewniany, Steico Zell 250 mm, folia paroizolacyjna, płyta karton-gips lub boazeria
- Parapety wewnętrzne drewniane
- Instalacja elektryczna wraz z rozdzielnią i siłą
- Instalacja wodno-kanalizacyjna
- Instalacja grzewcza - podłogowa lub przygotowana pod kaloryfery
Dodatkowo, w cenie otrzymujesz:
- Projekt HOMEKONCEPT
- Kierownik budowy
Płatne opcje do wyboru:
- Płyta fundamentowa
- Adaptacja projektu i pozwolenie na budowę
- Taras
Zapytaj o szczegółową wycenę,
zostaw nr telefonu oddzwonimy
Technologia
Prefabrykowany dom całoroczny realizowany jest z najlepszych, dostępnych na rynku materiałów najlepszych europejskich i światowych marek. Ściany są ciepłe oraz otwarte dyfuzyjnie, w dużej mierze zapewniają to materiały izolacyjne Steico, Należą do nich Steico Protect na ścianach oraz Steico Zell w przegrodzie konstrukcyjnej ścian i dachu. Okna to m.in. sześciokomorowe profile o głębokości zabudowy 80 mm oraz pakiety trzyszybowe 48 mm z ciepłą ramką zapewniają doskonałą izolacyjność termiczną, okna o współczynniku przenikania ciepła U = 0,78 W/m²K. Drzwi stalowe PCV firmy KMT.
W dużej mierze konstrukcja jest prefabrykowana, tak aby na placu budowy prace przebiegały sprawnie i aby uniezależnić się od warunków atmosferycznych.
Gwarancja na dom wynosi 30 lat
Elewacje i działka
Dom prefabrykowany parterowy HOMEKONCEPT 45
GD-0311/HK45
Dowiedz się czy ten dom pasuje na Twoją działkę
Uzupełnij dane, nasz specjalista skontaktuje się z Tobą by zapytać Cię o niezbędne dane o Twojej działce
Warianty
Dom prefabrykowany parterowy HOMEKONCEPT 44
|
| 99,80 m² |
|---|---|
|
| Jednorodzinny wolnostojący |
|
| Bez garażu |
|
| 3 |
|
| 2 |
|
| 322 920 zł |
|
| 3 miesiące |
|
| Garderoba, Kominek, Pralnia, Spiżarnia, Zadaszony taras |
|
| 99,80 m² |
|
| 130,04 m² |
|
| Prefabrykowana drewniana |
|
| Nie dotyczy |
|
| 25,00 m x 16,87 m |
|
| 21,50 m x 9,25 m |
|
| Klasa energooszczędna EP-30-70 kWh m2/rok |
|
| Całoroczne |
|
| 7,42 m |
|
| 3,61 m |
|
| Dwuspadowy |
|
| 35° |
|
| NIE |
|
| 68,48 kWh/(m²rok) |
|
| 13,60 kWh/(m²rok) |
|
| Grawitacyjna |
|
| Brak |
|
| 506 520 zł |
|
| 4 miesiące |
|
| Parterowy |
|
| Nowoczesny, Tradycyjny |
|
| NIE |
| Producent | Tektum |
|
| Nie uwzględniono w wycenie |
| Pow. użytkowa | 70-100 m² |
| Technologia | Drewniana |
Podobne
Dom prefabrykowany parterowy Karolina III
|
| 56,40 m² |
|---|---|
|
| Jednorodzinny wolnostojący |
|
| Bez garażu |
|
| 2 |
|
| 1 |
|
| 248 292 zł |
|
| 3 miesiące |
|
| Pomieszczenie gospodarcze |
|
| 56,40 m² |
|
| 69,35 m² |
|
| Prefabrykowana drewniana |
|
| Nie dotyczy |
|
| 17,08 m x 14,88 m |
|
| 10,08 m x 6,88 m |
|
| Klasa energooszczędna EP-30-70 kWh m2/rok |
|
| Całoroczne |
|
| 5,57 m |
|
| 2,42 m |
|
| Dwuspadowy |
|
| 30° |
|
| NIE |
|
| – |
|
| – |
|
| Grawitacyjna |
|
| Brak |
|
| 306 720 zł |
|
| 5 miesięcy |
|
| Parterowy |
|
| Tradycyjny |
|
| NIE |
| Producent | Mildo |
|
| Nie uwzględniono w wycenie |
| Pow. użytkowa | 35-70 m² |
| Technologia | Drewniana |
Dom prefabrykowany parterowy Idoneo
|
| 104,50 m² |
|---|---|
|
| Jednorodzinny wolnostojący |
|
| Bez garażu |
|
| 4 |
|
| 3 |
|
| 394 200 zł |
|
| 3 miesiące |
|
| Garderoba, Pomieszczenie gospodarcze, Spiżarnia |
|
| 104,50 m² |
|
| 126,45 m² |
|
| Prefabrykowana keramzytowa |
|
| Nie dotyczy |
|
| 21,00 m x 17,10 m |
|
| 14,00 m x 9,10 m |
|
| Klasa energooszczędna EP-30-70 kWh m2/rok |
|
| Całoroczne |
|
| 5,85 m |
|
| – |
|
| Dwuspadowy |
|
| 30° |
|
| NIE |
|
| 50,00 kWh/(m²rok) |
|
| – |
|
| Mechaniczna |
|
| Brak |
|
| 578 038 zł |
|
| 6 miesięcy |
|
| Parterowy |
|
| Tradycyjny |
|
| NIE |
| Producent | Abakon |
|
| Uwzględniono w wycenie |
| Pow. użytkowa | 100-130 m² |
| Technologia | Betonowa/Keramzytowa |
Dom prefabrykowany parterowy Z500 model Z 473
|
| 101,10 m² |
|---|---|
|
| Jednorodzinny wolnostojący |
|
| Bez garażu |
|
| 4 |
|
| 2 |
|
| 371 088 zł |
|
| 3 miesiące |
|
| Pomieszczenie gospodarcze, Zadaszony taras |
|
| 101,10 m² |
|
| 128,50 m² |
|
| Prefabrykowana drewniana |
|
| Nie dotyczy |
|
| 21,16 m x 17,06 m |
|
| 14,16 m x 9,06 m |
|
| Klasa energooszczędna EP-30-70 kWh m2/rok |
|
| Całoroczne |
|
| 6,50 m |
|
| 3,29 m |
|
| Dwuspadowy |
|
| 30° |
|
| NIE |
|
| 55,70 kWh/(m²rok) |
|
| – |
|
| Grawitacyjna |
|
| Brak |
|
| 524 102 zł |
|
| 5 miesięcy |
|
| Parterowy |
|
| Tradycyjny |
|
| NIE |
| Producent | Mildo |
|
| Nie uwzględniono w wycenie |
| Pow. użytkowa | 100-130 m² |
| Technologia | Drewniana |
Dom prefabrykowany parterowy Idoneo 3
|
| 84,12 m² |
|---|---|
|
| Jednorodzinny wolnostojący |
|
| Bez garażu |
|
| 4 |
|
| 2 |
|
| 343 148 zł |
|
| 3 miesiące |
|
| Pomieszczenie gospodarcze |
|
| 84,12 m² |
|
| 102,00 m² |
|
| Prefabrykowana keramzytowa |
|
| Nie dotyczy |
|
| 19,50 m x 16,16 m |
|
| 12,50 m x 8,16 m |
|
| Klasa energooszczędna EP-30-70 kWh m2/rok |
|
| Całoroczne |
|
| 5,61 m |
|
| – |
|
| Dwuspadowy |
|
| 30° |
|
| NIE |
|
| 50,00 kWh/(m²rok) |
|
| – |
|
| Mechaniczna |
|
| Brak |
|
| 502 070 zł |
|
| 6 miesięcy |
|
| Parterowy |
|
| Tradycyjny |
|
| NIE |
| Producent | Abakon |
|
| Uwzględniono w wycenie |
| Pow. użytkowa | 70-100 m² |
| Technologia | Betonowa/Keramzytowa |
Powierzchnia i wymiary
|
| 108,66 m² |
|---|---|
|
| 108,66 m² |
|
| 140,47 m² |
|
| Nie dotyczy |
|
| 25,60 m x 16,87 m |
|
| 20,30 m x 10,55 m |
|
| 7,39 m |
|
| 3,57 m |
|
| Dwuspadowy |
|
| 35° |
Energooszczędność
|
| 66,25 kWh/(m²rok) |
|---|---|
|
| 16,71 kWh/(m²rok) |
|
| Grawitacyjna |
|
| Brak |


















