Zaciekawiony? Chcesz poznać więcej szczegółów?
Koszt budowy
|
| 248 292 zł |
|---|---|
|
| 3 miesiące |
- Konstrukcja drewniana 195 x 45 mm (certyfikat C24) zależne od wielkości budynku, strugana czterostronnie - fazowana, suszona do max 16-18% wilgotności
- Tynk silikatowo-silikonowy 1,5 mm - kolor do wyboru
- Płyta Steico Protect
- Okna PVC 3-szybowe, kolor do wyboru z zewnątrz, wewnątrz białe
- Okno tarasowe z ruchomym słupkiem
- Dach - krokwie lite KVH 180 x 60 mm, strugane czterostronnie - fazowane, suszone do max 16-18% wilgotności, podbitka malowana na wybrany kolor farbami Teknos, blachodachówka Bratex, orynnowanie metalowe, ława i stopnie kominiarskie (gwarancja 45 lat)
- Drzwi - KMT Passive, metalowe
- Strop - belki stropowe KVH 180 x 60 mm (certyfikat C24) - strugane czterostronnie - fazowana, suszona do max 16-18% wilgotności, deska stropopodłogowa 28 mm (strop otwarty) / OSB 22 mm
- Ściany działowe - stelaż 95 x 45 mm i 145 x 45 mm
- Schody strychowe
- Parapety zewnętrzne metalowe - kolor do wyboru
- Komin systemowy z podwójnym kanałem wentylacyjnym
- Kominki wentylacyjne 3 szt
|
| 306 720 zł |
|---|---|
|
| 5 miesięcy |
- SSZ plus
- Ściany zewnętrzne - Steico Zell 200 mm, stelaż drewniany 38 x 63 mm, folia paroizolacyjna, płyta karton-gips lub boazeria
- Ściany wewnętrzne - wełna kamienna 100 mm w płytach Paroc, płyta karton-gips lub boazeria
- Strop - stelaż drewniany, Steico Zell 250 mm, folia paroizolacyjna, płyta karton-gips lub boazeria
- Parapety wewnętrzne drewniane
- Instalacja elektryczna wraz z rozdzielnią i siłą
- Instalacja wodno-kanalizacyjna
- Instalacja grzewcza - podłogowa lub przygotowana pod kaloryfery
Dodatkowo, w cenie otrzymujesz:
- Projekt budowlano konstrukcyjny
Płatne opcje do wyboru:
- Płyta fundamentowa
- Adaptacja projektu i pozwolenie na budowę
- Kierownik budowy
- Taras
Zapytaj o szczegółową wycenę,
zostaw nr telefonu oddzwonimy
Technologia
Prefabrykowany dom całoroczny realizowany jest z najlepszych, dostępnych na rynku materiałów najlepszych europejskich i światowych marek. Ściany są ciepłe oraz otwarte dyfuzyjnie, w dużej mierze zapewniają to materiały izolacyjne Steico, Należą do nich Steico Protect na ścianach oraz Steico Zell w przegrodzie konstrukcyjnej ścian i dachu. Okna to m.in. sześciokomorowe profile o głębokości zabudowy 80 mm oraz pakiety trzyszybowe 48 mm z ciepłą ramką zapewniają doskonałą izolacyjność termiczną, okna o współczynniku przenikania ciepła U = 0,78 W/m²K. Drzwi stalowe PCV firmy KMT.
W dużej mierze konstrukcja jest prefabrykowana, tak aby na placu budowy prace przebiegały sprawnie i aby uniezależnić się od warunków atmosferycznych.
Gwarancja na dom wynosi 30 lat
Elewacje i działka
Dom prefabrykowany parterowy Karolina III
GD-0288/KarolinaIII
Dowiedz się czy ten dom pasuje na Twoją działkę
Uzupełnij dane, nasz specjalista skontaktuje się z Tobą by zapytać Cię o niezbędne dane o Twojej działce
Podobne
Dom prefabrykowany parterowy Prenovi 87
|
| 87,02 m² |
|---|---|
|
| Jednorodzinny wolnostojący |
|
| Bez garażu |
|
| 3 |
|
| 2 |
|
| 332 260 zł |
|
| 4 miesiące |
|
| Pomieszczenie gospodarcze |
|
| 87,02 m² |
|
| 107,60 m² |
|
| Prefabrykowana betonowa |
|
| Nie dotyczy |
|
| 20,50 m x 16,70 m |
|
| 12,42 m x 8,62 m |
|
| Klasa energooszczędna EP-30-70 kWh m2/rok |
|
| Całoroczne |
|
| 5,33 m |
|
| – |
|
| Dwuspadowy |
|
| 30° |
|
| NIE |
|
| – |
|
| – |
|
| Mechaniczna |
|
| Gazowe |
|
| 449 000 zł |
|
| 6 miesięcy |
|
| Parterowy |
|
| Tradycyjny |
|
| NIE |
| Producent | Prenovi |
|
| Uwzględniono w wycenie |
| Pow. użytkowa | 70-100 m² |
| Technologia | Betonowa/Keramzytowa |
Dom prefabrykowany parterowy HOMEKONCEPT 44
|
| 99,80 m² |
|---|---|
|
| Jednorodzinny wolnostojący |
|
| Bez garażu |
|
| 3 |
|
| 2 |
|
| 322 920 zł |
|
| 3 miesiące |
|
| Garderoba, Kominek, Pralnia, Spiżarnia, Zadaszony taras |
|
| 99,80 m² |
|
| 130,04 m² |
|
| Prefabrykowana drewniana |
|
| Nie dotyczy |
|
| 25,00 m x 16,87 m |
|
| 21,50 m x 9,25 m |
|
| Klasa energooszczędna EP-30-70 kWh m2/rok |
|
| Całoroczne |
|
| 7,42 m |
|
| 3,61 m |
|
| Dwuspadowy |
|
| 35° |
|
| NIE |
|
| 68,48 kWh/(m²rok) |
|
| 13,60 kWh/(m²rok) |
|
| Grawitacyjna |
|
| Brak |
|
| 506 520 zł |
|
| 4 miesiące |
|
| Parterowy |
|
| Nowoczesny, Tradycyjny |
|
| NIE |
| Producent | Tektum |
|
| Nie uwzględniono w wycenie |
| Pow. użytkowa | 70-100 m² |
| Technologia | Drewniana |
Dom prefabrykowany parterowy Nevada
|
| 55,50 m² |
|---|---|
|
| Jednorodzinny wolnostojący |
|
| Bez garażu |
|
| 2 |
|
| 1 |
|
| 238 572 zł |
|
| 3 miesiące |
|
| – |
|
| 55,50 m² |
|
| 67,33 m² |
|
| Prefabrykowana drewniana |
|
| Nie dotyczy |
|
| 14,64 m x 17,14 m |
|
| 6,64 m x 10,14 m |
|
| Klasa energooszczędna EP-30-70 kWh m2/rok |
|
| Całoroczne |
|
| 5,70 m |
|
| 2,40 m |
|
| Dwuspadowy |
|
| 30° |
|
| NIE |
|
| – |
|
| – |
|
| Grawitacyjna |
|
| Brak |
|
| 303 372 zł |
|
| 5 miesięcy |
|
| Parterowy |
|
| Tradycyjny |
|
| NIE |
| Producent | Mildo |
|
| Nie uwzględniono w wycenie |
| Pow. użytkowa | 35-70 m² |
| Technologia | Drewniana |
Dom prefabrykowany parterowy 2023 SE
|
| 75,69 m² |
|---|---|
|
| Jednorodzinny wolnostojący |
|
| Bez garażu |
|
| 3 |
|
| 2 |
|
| 309 366 zł |
|
| 3 miesiące |
|
| – |
|
| 75,69 m² |
|
| 91,84 m² |
|
| Prefabrykowana keramzytowa |
|
| Nie dotyczy |
|
| 18,20 m x 16,20 m |
|
| 11,20 m x 8,20 m |
|
| Klasa energooszczędna EP-30-70 kWh m2/rok |
|
| Całoroczne |
|
| 5,70 m |
|
| – |
|
| Dwuspadowy |
|
| 30° |
|
| NIE |
|
| 50,00 kWh/(m²rok) |
|
| – |
|
| Mechaniczna |
|
| Brak |
|
| 455 814 zł |
|
| 6 miesięcy |
|
| Parterowy |
|
| Tradycyjny |
|
| NIE |
| Producent | Abakon |
|
| Uwzględniono w wycenie |
| Pow. użytkowa | 70-100 m² |
| Technologia | Betonowa/Keramzytowa |
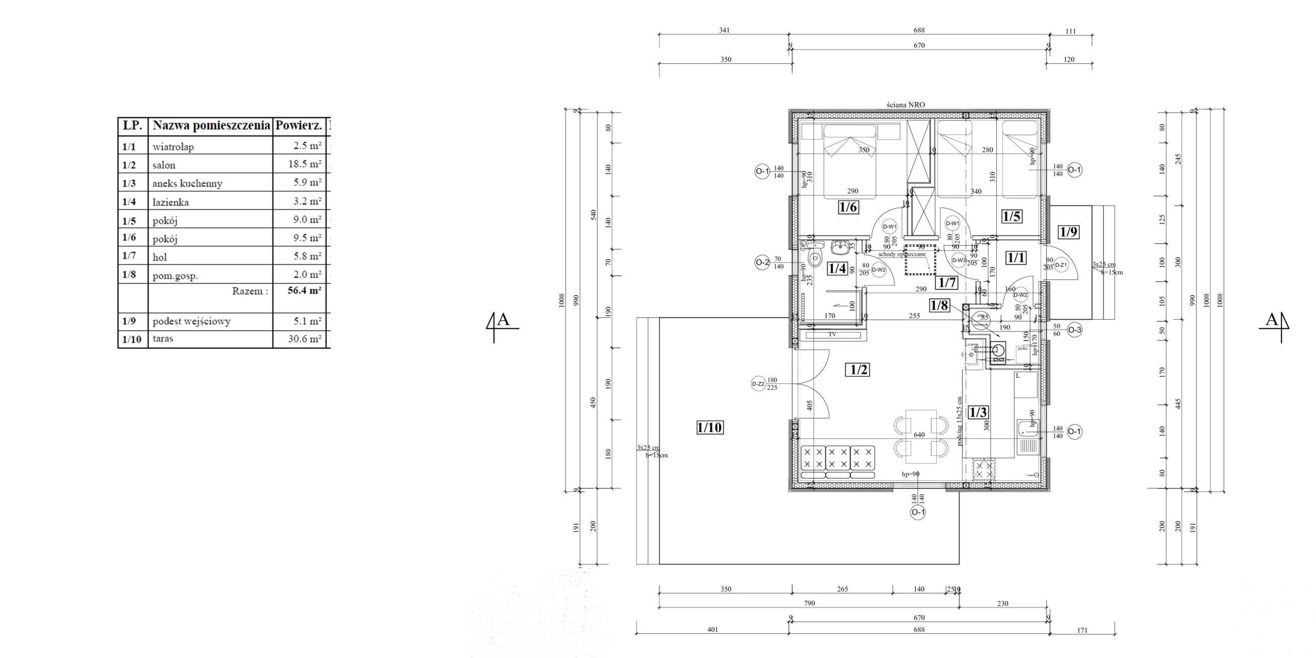
Powierzchnia i wymiary
|
| 56,40 m² |
|---|---|
|
| 56,40 m² |
|
| 69,35 m² |
|
| Nie dotyczy |
|
| 17,08 m x 14,88 m |
|
| 10,08 m x 6,88 m |
|
| 5,57 m |
|
| 2,42 m |
|
| Dwuspadowy |
|
| 30° |
Energooszczędność
|
| – |
|---|---|
|
| – |
|
| Grawitacyjna |
|
| Brak |





