Z451 D to propozycja niewielkiego, współczesnego domu z dwuspadowym dachem bez okapów. Elewację wykonano z drewna oraz ciemnego tynku. Wejście umieszczone centralnie od frontu zostało zadaszone poprzez cofnięcie ściany co stanowi atut w deszczowe lub śnieżne dni.
Prezentowany projekt dekowany jest dla: młodych ludzi, którzy wolą własną przestrzeń zamiast mieszkania w bloku; rodzin, których dzieci "wyfrunęły" z gniazda; oraz sprawdzi się również jako domek letniskowy.
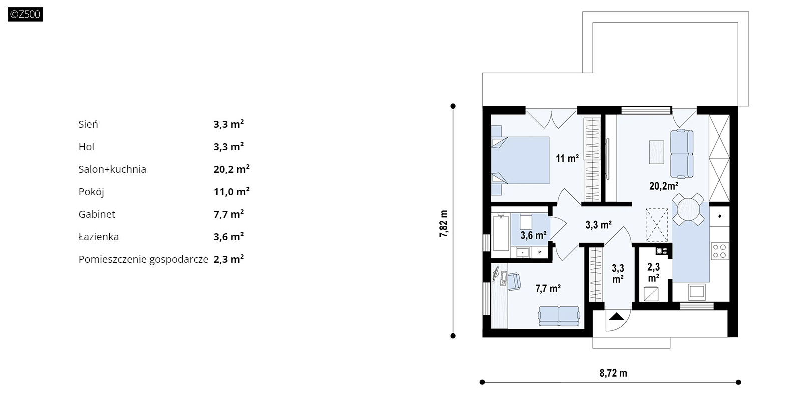
Na powierzchni ok. 50 m² zaprojektowano otwartą część dzienną, sypialnię z wyjściem na taras, niewielką łazienkę oraz gabinet, który może pełnić rolę pokoju gościnnego lub garderoby.
Zaciekawiony? Chcesz poznać więcej szczegółów?
Koszt budowy
|
| 202 284 zł |
|---|---|
|
| 3 miesiące |
- Konstrukcja drewniana 195 x 45 mm (certyfikat C24) zależne od wielkości budynku, strugana czterostronnie - fazowana, suszona do max 16-18% wilgotności
- Tynk silikatowo-silikonowy 1,5 mm - kolor do wyboru
- Płyta Steico Protect
- Okna PVC 3-szybowe, kolor do wyboru z zewnątrz, wewnątrz białe
- Okno tarasowe z ruchomym słupkiem
- Dach - krokwie lite KVH 180 x 60 mm, strugane czterostronnie - fazowane, suszone do max 16-18% wilgotności, podbitka malowana na wybrany kolor farbami Teknos, blachodachówka Bratex, orynnowanie metalowe, ława i stopnie kominiarskie (gwarancja 45 lat)
- Drzwi - KMT Passive, metalowe
- Strop - belki stropowe KVH 180 x 60 mm (certyfikat C24) - strugane czterostronnie - fazowana, suszona do max 16-18% wilgotności, deska stropopodłogowa 28 mm (strop otwarty) / OSB 22 mm
- Ściany działowe - stelaż 95 x 45 mm i 145 x 45 mm
- Schody strychowe
- Parapety zewnętrzne metalowe - kolor do wyboru
- Komin systemowy z podwójnym kanałem wentylacyjnym
- Kominki wentylacyjne 3 szt
|
| 276 523 zł |
|---|---|
|
| 5 miesięcy |
- SSZ plus
- Ściany zewnętrzne - Steico Zell 200 mm, stelaż drewniany 38 x 63 mm, folia paroizolacyjna, płyta karton-gips lub boazeria
- Ściany wewnętrzne - wełna kamienna 100 mm w płytach Paroc, płyta karton-gips lub boazeria
- Strop - stelaż drewniany, Steico Zell 250 mm, folia paroizolacyjna, płyta karton-gips lub boazeria
- Parapety wewnętrzne drewniane
- Instalacja elektryczna wraz z rozdzielnią i siłą
- Instalacja wodno-kanalizacyjna
- Instalacja grzewcza - podłogowa lub przygotowana pod kaloryfery
Dodatkowo, w cenie otrzymujesz:
- Projekt budowlano konstrukcyjny
Płatne opcje do wyboru:
- Płyta fundamentowa
- Adaptacja projektu i pozwolenie na budowę
- Kierownik budowy
- Taras
Zapytaj o szczegółową wycenę,
zostaw nr telefonu oddzwonimy
Technologia
Prefabrykowany dom całoroczny realizowany jest z najlepszych, dostępnych na rynku materiałów najlepszych europejskich i światowych marek. Ściany są ciepłe oraz otwarte dyfuzyjnie, w dużej mierze zapewniają to materiały izolacyjne Steico, Należą do nich Steico Protect na ścianach oraz Steico Zell w przegrodzie konstrukcyjnej ścian i dachu. Okna to m.in. sześciokomorowe profile o głębokości zabudowy 80 mm oraz pakiety trzyszybowe 48 mm z ciepłą ramką zapewniają doskonałą izolacyjność termiczną, okna o współczynniku przenikania ciepła U = 0,78 W/m²K. Drzwi stalowe PCV firmy KMT.
W dużej mierze konstrukcja jest prefabrykowana, tak aby na placu budowy prace przebiegały sprawnie i aby uniezależnić się od warunków atmosferycznych.
Gwarancja na dom wynosi 30 lat
Elewacje i działka
Dom prefabrykowany parterowy Z500 model Z451 D
GD-0297/Z451D
Dowiedz się czy ten dom pasuje na Twoją działkę
Uzupełnij dane, nasz specjalista skontaktuje się z Tobą by zapytać Cię o niezbędne dane o Twojej działce
Podobne
Dom prefabrykowany parterowy Pióro Architekci PA-16
|
| 91,80 m² |
|---|---|
|
| Jednorodzinny wolnostojący |
|
| Bez garażu |
|
| 3 |
|
| 2 |
|
| 353 117 zł |
|
| 3 miesiące |
|
| Pomieszczenie gospodarcze, Spiżarnia |
|
| 91,80 m² |
|
| 130,80 m² |
|
| Prefabrykowana drewniana |
|
| Nie dotyczy |
|
| 23,25 m x 16,05 m |
|
| 16,25 m x 8,05 m |
|
| Klasa energooszczędna EP-30-70 kWh m2/rok |
|
| Całoroczne |
|
| 6,73 m |
|
| Nie dotyczy |
|
| Dwuspadowy |
|
| 37° |
|
| TAK |
|
| 60,89 kWh/(m²rok) |
|
| – |
|
| Grawitacyjna |
|
| Brak |
|
| 499 290 zł |
|
| 4 miesiące |
|
| Parterowy |
|
| Nowoczesna stodoła |
|
| NIE |
| Producent | Prestige House |
|
| Nie uwzględniono w wycenie |
| Pow. użytkowa | 70-100 m² |
| Technologia | Drewniana |
Dom prefabrykowany parterowy Grand House 78
|
| 78,11 m² |
|---|---|
|
| Bez garażu |
|
| 2 |
|
| 1 |
|
| 302 400 zł |
|
| 2 miesiące |
|
| Garderoba, Pomieszczenie gospodarcze |
|
| 78,11 m² |
|
| 98,00 m² |
|
| Modułowa, Prefabrykowana drewniana |
|
| Nie dotyczy |
|
| 19,54 m x 15,82 m |
|
| 12,54 m x 7,82 m |
|
| Klasa energooszczędna EP-30-70 kWh m2/rok |
|
| Całoroczne, Letniskowe |
|
| 6,08 m |
|
| Nie dotyczy |
|
| Dwuspadowy |
|
| 35° |
|
| TAK |
|
| 62,80 kWh/(m²rok) |
|
| – |
|
| Grawitacyjna |
|
| Elektryczne |
|
| 421 200 zł |
|
| 3 miesiące |
|
| Parterowy |
|
| Nowoczesna stodoła |
|
| Jednorodzinny wolnostojący, Rekreacyjny |
|
| TAK |
| Producent | Modularen |
|
| Nie uwzględniono w wycenie |
| Pow. użytkowa | 70-100 m² |
| Technologia | Drewniana |
Dom szkieletowy parterowy Pieniński 02
|
| 62,23 m² |
|---|---|
|
| Jednorodzinny wolnostojący |
|
| Bez garażu |
|
| 2 |
|
| 1 |
|
| 247 869 zł |
|
| 3 miesiące |
|
| Pomieszczenie gospodarcze |
|
| 62,23 m² |
|
| 99,75 m² |
|
| Szkieletowa drewniana |
|
| Nie dotyczy |
|
| 21,45 m x 14,42 m |
|
| 13,45 m x 7,42 m |
|
| – |
|
| Całoroczne |
|
| 5,65 m |
|
| Nie dotyczy |
|
| Dwuspadowy |
|
| 35° |
|
| TAK |
|
| – |
|
| – |
|
| Grawitacyjna |
|
| Brak |
|
| 345 749 zł |
|
| 4 miesiące |
|
| Parterowy |
|
| Nowoczesna stodoła |
|
| NIE |
| Producent | Prestige House |
|
| Nie uwzględniono w wycenie |
| Pow. użytkowa | 35-70 m² |
| Technologia | Drewniana |
Dom prefabrykowany parterowy SZT 90
|
| 90,40 m² |
|---|---|
|
| Jednorodzinny wolnostojący |
|
| Bez garażu |
|
| 3 |
|
| 2 |
|
| 325 717 zł |
|
| 3 miesiące |
|
| Garderoba, Pomieszczenie gospodarcze, Wjazd od południa |
|
| 90,40 m² |
|
| 108,95 m² |
|
| Prefabrykowana keramzytowa |
|
| Nie dotyczy |
|
| 16,35 m x 21,55 m |
|
| 8,35 m x 13,55 m |
|
| Klasa energooszczędna EP-30-70 kWh m2/rok |
|
| Całoroczne |
|
| 5,77 m |
|
| – |
|
| Dwuspadowy |
|
| 30° |
|
| TAK |
|
| 50,00 kWh/(m²rok) |
|
| – |
|
| Mechaniczna |
|
| Brak |
|
| 479 444 zł |
|
| 6 miesięcy |
|
| Parterowy |
|
| Nowoczesny |
|
| NIE |
| Producent | Abakon |
|
| Uwzględniono w wycenie |
| Pow. użytkowa | 70-100 m² |
| Technologia | Betonowa/Keramzytowa |
Powierzchnia i wymiary
|
| 51,40 m² |
|---|---|
|
| 51,40 m² |
|
| 63,90 m² |
|
| Nie dotyczy |
|
| 15,72 m x 14,92 m |
|
| 8,72 m x 7,92 m |
|
| 5,55 m |
|
| – |
|
| Dwuspadowy |
|
| 25° |
Energooszczędność
|
| 47,80 kWh/(m²rok) |
|---|---|
|
| – |
|
| Grawitacyjna |
|
| Brak |











