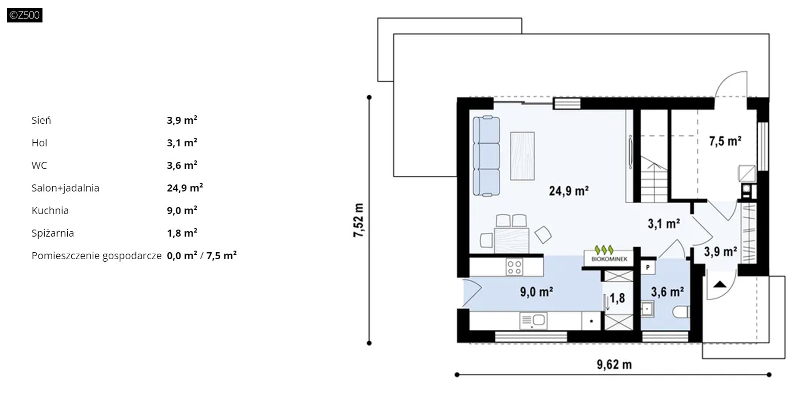
Z229 D to zgrabny, kompaktowy dom z poddaszem użytkowym. Prosta bryła przykryta dwuspadowym dachem oraz drewniane elementy wykończenia elewacji nadają mu nowoczesnego charakteru.
Główną zaletą projektu jest funkcjonalnie rozplanowane wnętrze na stosunkowo niedużej powierzchni użytkowej. Pomieszczenie gospodarcze z dodatkowym wejściem od ogrodu sprawdzi się idealnie jako kotłownia. Spora łazienka z oknem może również pełnić rolę pralni. Kuchnia została oddzielona od salonu ścianką działową, którą łatwo można usunąć i stworzyć jednoprzestrzenną strefę dzienną. Wygodne schody ze spocznikiem prowadzą do strefy nocnej na poddaszu.
Znajdują się tu trzy sypialnie oraz wspólna łazienka. Główna sypialnia posiada wydzielona garderobę oraz nowoczesne okna dachowe, które zapewnią wspaniały widok na ogród. Dodatkowym atutem jest ścianka kolankowa o wysokości h=120cm, co podnosi komfort użytkowania poddasza.
Zaciekawiony? Chcesz poznać więcej szczegółów?
Koszt budowy
|
| 323 784 zł |
|---|---|
|
| 3 miesiące |
- Konstrukcja drewniana 195 x 45 mm (certyfikat C24) zależne od wielkości budynku, strugana czterostronnie - fazowana, suszona do max 16-18% wilgotności
- Tynk silikatowo-silikonowy 1,5 mm - kolor do wyboru
- Płyta Steico Protect
- Okna PVC 3-szybowe, kolor do wyboru z zewnątrz, wewnątrz białe
- Okno tarasowe z ruchomym słupkiem
- Dach - krokwie lite KVH 180 x 60 mm, strugane czterostronnie - fazowane, suszone do max 16-18% wilgotności, podbitka malowana na wybrany kolor farbami Teknos, blachodachówka Bratex, orynnowanie metalowe, ława i stopnie kominiarskie (gwarancja 45 lat)
- Drzwi - KMT Passive, metalowe
- Strop - belki stropowe KVH 180 x 60 mm (certyfikat C24) - strugane czterostronnie - fazowana, suszona do max 16-18% wilgotności, deska stropopodłogowa 28 mm (strop otwarty) / OSB 22 mm
- Ściany działowe - stelaż 95 x 45 mm i 145 x 45 mm
- Schody - zabiegowe sosnowe z podstopniami bez tralek i poręczy
- Parapety zewnętrzne metalowe - kolor do wyboru
- Komin systemowy z podwójnym kanałem wentylacyjny
- Kominki wentylacyjne 3 szt.
|
| 454 723 zł |
|---|---|
|
| 5 miesięcy |
- SSZ plus
- Ściany zewnętrzne - Steico Zell 200 mm, stelaż drewniany 38 x 63 mm, folia paroizolacyjna, płyta karton-gips lub boazeria
- Ściany wewnętrzne - wełna kamienna 100 mm w płytach Paroc, płyta karton-gips lub boazeria
- Strop - styropian posadzkowy 50 mm, wylewka betonowa 50 mm (strop otwarty) w przypadku wykupu opcji dodatkowej (płyty fundamentowej) u wykonawcy domu
- Dach - stelaż drewniany, Steico Zell 250 mm, folia paroizolacyjna, płyta karton-gips lub boazeria
- Parapety wewnętrzne drewniane
- Instalacja elektryczna wraz z rozdzielnią i siłą
- Instalacja wodno-kanalizacyjna
- Instalacja grzewcza - podłogowa lub przygotowana pod kaloryfery
Dodatkowo, w cenie otrzymujesz:
- Projekt budowlano konstrukcyjny
Płatne opcje do wyboru:
- Płyta fundamentowa
- Adaptacja projektu i pozwolenie na budowę
- Kierownik budowy
- Taras
Zapytaj o szczegółową wycenę,
zostaw nr telefonu oddzwonimy
Technologia
Prefabrykowany dom całoroczny realizowany jest z najlepszych, dostępnych na rynku materiałów najlepszych europejskich i światowych marek. Ściany są ciepłe oraz otwarte dyfuzyjnie, w dużej mierze zapewniają to materiały izolacyjne Steico, Należą do nich Steico Protect na ścianach oraz Steico Zell w przegrodzie konstrukcyjnej ścian i dachu. Okna to m.in. sześciokomorowe profile o głębokości zabudowy 80 mm oraz pakiety trzyszybowe 48 mm z ciepłą ramką zapewniają doskonałą izolacyjność termiczną, okna o współczynniku przenikania ciepła U = 0,78 W/m²K. Drzwi stalowe PCV firmy KMT.
W dużej mierze konstrukcja jest prefabrykowana, tak aby na placu budowy prace przebiegały sprawnie i aby uniezależnić się od warunków atmosferycznych.
Gwarancja na dom wynosi 30 lat
Elewacje i działka
Dom prefabrykowany z poddaszem użytkowym Z500 model Z229 D
GD-0296/Z229D
Dowiedz się czy ten dom pasuje na Twoją działkę
Uzupełnij dane, nasz specjalista skontaktuje się z Tobą by zapytać Cię o niezbędne dane o Twojej działce
Podobne
Dom prefabrykowany z poddaszem użytkowym Prenovi 166
|
| 160,28 m² |
|---|---|
|
| Jednorodzinny wolnostojący |
|
| Bez garażu |
|
| 5 |
|
| 3 |
|
| 546 860 zł |
|
| 4 miesiące |
|
| Garderoba, Pomieszczenie gospodarcze, Pralnia |
|
| 166,16 m² |
|
| 104,50 m² |
|
| Prefabrykowana betonowa |
|
| Nie dotyczy |
|
| 16,10 m x 21,00 m |
|
| 8,10 m x 12,95 m |
|
| Klasa energooszczędna EP-30-70 kWh m2/rok |
|
| Całoroczne |
|
| 8,85 m |
|
| 5,13 m |
|
| Dwuspadowy |
|
| 42° |
|
| TAK |
|
| 68,11 kWh/(m²rok) |
|
| 42,56 kWh/(m²rok) |
|
| Mechaniczna |
|
| Pompa ciepła |
|
| 739 000 zł |
|
| 6 miesięcy |
|
| Z poddaszem użytkowym |
|
| Nowoczesny, Nowoczesna stodoła |
|
| NIE |
| Producent | Prenovi |
|
| Uwzględniono w wycenie |
| Pow. użytkowa | pow. 160 m² |
| Technologia | Betonowa/Keramzytowa |
Dom prefabrykowany z poddaszem użytkowym Cetus
|
| 142,2 m² |
|---|---|
|
| Jednorodzinny wolnostojący |
|
| Bez garażu |
|
| 5 |
|
| 2 |
|
| 568 660 zł |
|
| 3 miesiące |
|
| Pomieszczenie gospodarcze, Spiżarnia |
|
| 174,50 m² |
|
| 114,80 m² |
|
| Modułowa, Prefabrykowana drewniana |
|
| Nie dotyczy |
|
| 20,03 m x 23,65 m |
|
| 13,03 m x 15,65 m |
|
| Klasa energooszczędna EP-30-70 kWh m2/rok |
|
| Całoroczne |
|
| 8,23 m |
|
| Nie dotyczy |
|
| Dwuspadowy |
|
| 45° |
|
| TAK |
|
| 40,00 kWh/(m²rok) |
|
| – |
|
| Grawitacyjna |
|
| Elektryczne |
|
| 795 646 zł |
|
| 4 miesiące |
|
| Z poddaszem użytkowym |
|
| Nowoczesny |
|
| NIE |
| Producent | HausWerk |
|
| Nie uwzględniono w wycenie |
| Pow. użytkowa | 130-160 m² |
| Technologia | Drewniana |
Dom prefabrykowany z poddaszem użytkowym Prime House 110
|
| 101,78 m² |
|---|---|
|
| Bez garażu |
|
| 4 |
|
| 2 |
|
| 421 200 zł |
|
| 2 miesiące |
|
| Pomieszczenie gospodarcze |
|
| 110,00 m² |
|
| 80,00 m² |
|
| Modułowa, Prefabrykowana drewniana |
|
| Nie dotyczy |
|
| 19,36 m x 16,29 m |
|
| 11,36 m x 8,29 m |
|
| Klasa energooszczędna EP-30-70 kWh m2/rok |
|
| Całoroczne |
|
| 7,41 m |
|
| Nie dotyczy |
|
| Dwuspadowy |
|
| 40° |
|
| TAK |
|
| 62,80 kWh/(m²rok) |
|
| – |
|
| Grawitacyjna |
|
| Elektryczne |
|
| 561 600 zł |
|
| 3 miesiące |
|
| Z poddaszem użytkowym |
|
| Nowoczesna stodoła |
|
| Jednorodzinny wolnostojący, Rekreacyjny |
|
| TAK |
| Producent | Modularen |
|
| Nie uwzględniono w wycenie |
| Pow. użytkowa | 100-130 m² |
| Technologia | Drewniana |
Dom prefabrykowany z poddaszem użytkowym HOMEKONCEPT 66 A
|
| 103,89 m² |
|---|---|
|
| Jednorodzinny wolnostojący |
|
| Bez garażu |
|
| 3 |
|
| 2 |
|
| 389 102 zł |
|
| 3 miesiące |
|
| Antresola, Kominek, Pomieszczenie gospodarcze, Pralnia, Sauna, Zadaszony taras |
|
| 117,09 m² |
|
| 93,17 m² |
|
| Prefabrykowana drewniana |
|
| Nie dotyczy |
|
| 18,16 m x 21,00 m |
|
| 11,17 m x 16,87 m |
|
| Klasa energooszczędna EP-30-70 kWh m2/rok |
|
| Całoroczne |
|
| 7,10 m |
|
| 3,67 m |
|
| Dwuspadowy |
|
| 35° |
|
| NIE |
|
| 69,89 kWh/(m²rok) |
|
| 42,91 kWh/(m²rok) |
|
| Grawitacyjna |
|
| Brak |
|
| 607 262 zł |
|
| 4 miesiące |
|
| Z poddaszem użytkowym |
|
| Nowoczesna stodoła |
|
| NIE |
| Producent | Tektum |
|
| Nie uwzględniono w wycenie |
| Pow. użytkowa | 100-130 m² |
| Technologia | Drewniana |
Powierzchnia i wymiary
|
| 94,10 m² |
|---|---|
|
| 113,90 m² |
|
| 72,30 m² |
|
| Nie dotyczy |
|
| 17,62 m x 15,52 m |
|
| 9,62 m x 7,52 m |
|
| 7,75 m |
|
| – |
|
| Dwuspadowy |
|
| 35° |
Energooszczędność
|
| 63,54 kWh/(m²rok) |
|---|---|
|
| – |
|
| Grawitacyjna |
|
| Brak |


